takeofficeなら掲載物件の仲介手数料は無料です

新橋ウエストビル

住所 東京都港区西新橋3-8-2
交通 都営三田線御成門」 徒歩6分
JR東海道線新橋」 徒歩8分
都営三田線内幸町」 徒歩9分
竣工 1984年08月 構造 SRC
規模 地上9階, 地下1階 耐震基準 新耐震基準
床構造 - 空調設備 個別空調
天井高 2400mm 基準階面積 18坪(62m2)
コンセント容量 - 施工会社

最新の募集状況や類似物件については、
こちらにお問い合わせください。

新橋ウエストビル 外観

外観

  • 新橋ウエストビル エントランス写真

    エントランス

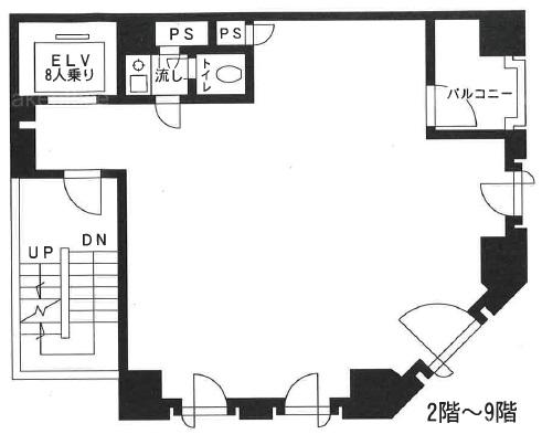
  • 基準階(2F~9F)

    基準階(2F~9F)

内見やお見積りなどの各種お問い合わせ

全物件
仲介手数料無料
仲介から
入居工事まで
ワンストップで対応
経験豊富なスタッフが
スピード感をもって
対応

周辺での似た条件の物件

非公開物件 多数あり!

お問い合わせフォーム