takeofficeなら掲載物件の仲介手数料は無料です

上地ビル

住所 東京都港区西新橋3-15-3
交通 都営三田線御成門」 徒歩5分
東京メトロ日比谷線神谷町」 徒歩6分
JR山手線新橋」 徒歩10分
竣工 1970年10月 構造 RC
規模 地上7階 耐震基準 旧耐震基準
床構造 - 空調設備 個別空調
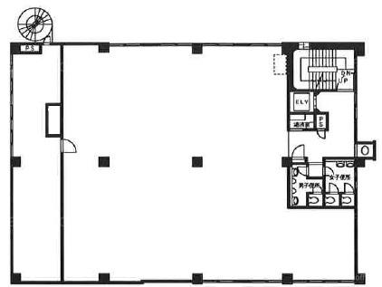
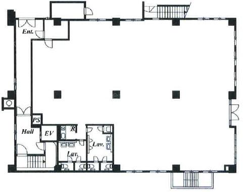
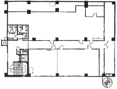
天井高 2350mm 基準階面積 107.69坪(356m2)
コンセント容量 - 施工会社

最新の募集状況や類似物件については、
こちらにお問い合わせください。

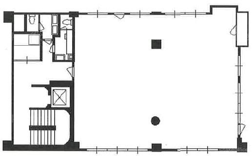
上地ビル 外観

外観

内見やお見積りなどの各種お問い合わせ

全物件
仲介手数料無料
仲介から
入居工事まで
ワンストップで対応
経験豊富なスタッフが
スピード感をもって
対応

周辺での似た条件の物件

非公開物件 多数あり!

お問い合わせフォーム