takeofficeなら掲載物件の仲介手数料は無料です

MSC御成門(旧:御成門M-SQUARE)

住所 東京都港区西新橋3-20-1
交通 都営三田線御成門」 徒歩4分
JR山手線新橋」 徒歩10分
都営大江戸線大門」 徒歩12分
竣工 2011年07月 構造 鉄骨造
規模 地上21階, 地下2階 耐震基準 -
床構造 フリーアクセス 100mm 空調設備 個別空調
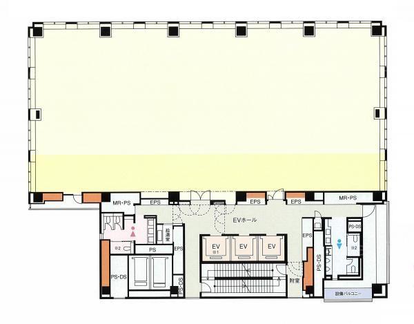
天井高 2750mm 基準階面積 166.6坪(550.74m2)
コンセント容量 60VA/m2 施工会社

最新の募集状況や類似物件については、
こちらにお問い合わせください。

MSC御成門(旧:御成門M-SQUARE) 外観

外観

  • MSC御成門(旧:御成門M-SQUARE) エントランス写真

    エントランス

  • 基準階(2~12F)

    基準階(2~12F)

  • 1F

    1F

内見やお見積りなどの各種お問い合わせ

全物件
仲介手数料無料
仲介から
入居工事まで
ワンストップで対応
経験豊富なスタッフが
スピード感をもって
対応

周辺での似た条件の物件

非公開物件 多数あり!

お問い合わせフォーム