takeofficeなら掲載物件の仲介手数料は無料です

マークライト虎ノ門

住所 東京都港区西新橋2-3-1
交通 都営三田線内幸町」 徒歩4分
東京メトロ銀座線虎ノ門」 徒歩5分
東京メトロ銀座線新橋」 徒歩7分
竣工 2016年02月 構造 鉄骨造+RC
規模 地上13階, 地下1階 耐震基準 新耐震基準
床構造 フリーアクセス 100mm 空調設備 個別空調
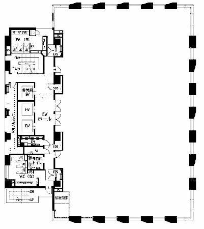
天井高 2800mm 基準階面積 205.61坪(679.7m2)
コンセント容量 50VA/m2 施工会社 清水建設

最新の募集状況や類似物件については、
こちらにお問い合わせください。

マークライト虎ノ門 外観

外観

建物パンフレット

建物パンフレットは作成時点のものであり、また計画段階のものも含まれる為、実際とは異なる場合がございます。

内見やお見積りなどの各種お問い合わせ

全物件
仲介手数料無料
仲介から
入居工事まで
ワンストップで対応
経験豊富なスタッフが
スピード感をもって
対応

周辺での似た条件の物件

非公開物件 多数あり!

お問い合わせフォーム