takeofficeなら掲載物件の仲介手数料は無料です

大和地所レジデンス虎ノ門ビル

住所 東京都港区西新橋3-1-8
交通 東京メトロ銀座線虎ノ門」 徒歩8分
都営三田線御成門」 徒歩8分
JR山手線新橋」 徒歩14分
竣工 2023年01月 構造 鉄骨造+SRC
規模 地上13階, 地下1階 耐震基準 新耐震基準
床構造 フリーアクセス 100mm 空調設備 個別空調
天井高 2800mm 基準階面積 130.58坪(431.66m2)
コンセント容量 60VA/m2 施工会社 大成建設

最新の募集状況や類似物件については、
こちらにお問い合わせください。

大和地所レジデンス虎ノ門ビル 外観

外観

  • 大和地所レジデンス虎ノ門ビル エントランス写真

    エントランス

  • 基準階(3~7F)

    基準階(3~7F)

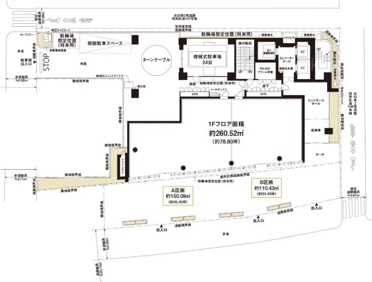
  • 1F

    1F

  • 2F

    2F

内見やお見積りなどの各種お問い合わせ

全物件
仲介手数料無料
仲介から
入居工事まで
ワンストップで対応
経験豊富なスタッフが
スピード感をもって
対応

周辺での似た条件の物件

非公開物件 多数あり!

お問い合わせフォーム