takeofficeなら掲載物件の仲介手数料は無料です

虎ノ門東洋ビル

住所 東京都港区虎ノ門1-4-2
交通 東京メトロ銀座線虎ノ門」 徒歩1分
都営三田線内幸町」 徒歩5分
JR山手線新橋」 徒歩9分
竣工 1962年09月 構造 SRC
規模 地上9階, 地下2階 耐震基準 新耐震基準
床構造 フリーアクセス 40mm 空調設備 個別空調
天井高 2450mm 基準階面積 188.33坪(622.58m2)
コンセント容量 - 施工会社

最新の募集状況や類似物件については、
こちらにお問い合わせください。

虎ノ門東洋ビル 外観

外観

  • 虎ノ門東洋ビル エントランス写真

    エントランス

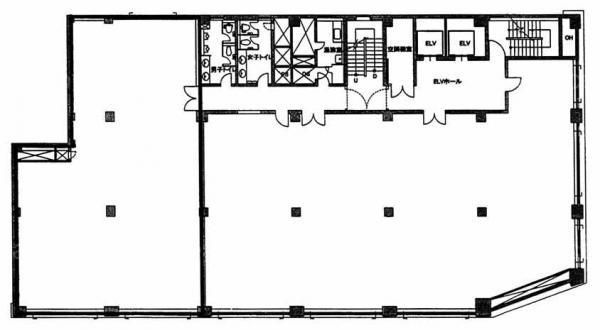
  • 基準階(5~6F)

    基準階(5~6F)

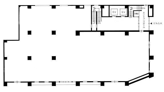
  • 1F

    1F

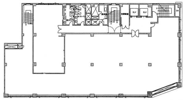
  • 4F

    4F

  • 8F

    8F

  • B1F

    B1F

内見やお見積りなどの各種お問い合わせ

全物件
仲介手数料無料
仲介から
入居工事まで
ワンストップで対応
経験豊富なスタッフが
スピード感をもって
対応

周辺での似た条件の物件

非公開物件 多数あり!

お問い合わせフォーム