takeofficeなら掲載物件の仲介手数料は無料です

富田屋ビル

住所 東京都港区虎ノ門1-8-7
交通 東京メトロ銀座線虎ノ門」 徒歩2分
都営三田線内幸町」 徒歩3分
東京メトロ丸ノ内線霞ヶ関」 徒歩5分
竣工 1974年04月 構造 SRC
規模 地上9階, 地下1階 耐震基準 旧耐震基準
床構造 - 空調設備 個別空調
天井高 2530mm 基準階面積 --
コンセント容量 - 施工会社

最新の募集状況や類似物件については、
こちらにお問い合わせください。

富田屋ビル 外観

外観

  • NOW PRINTING

    エントランス

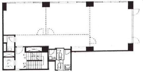
  • 基準階

    基準階

内見やお見積りなどの各種お問い合わせ

全物件
仲介手数料無料
仲介から
入居工事まで
ワンストップで対応
経験豊富なスタッフが
スピード感をもって
対応

周辺での似た条件の物件

非公開物件 多数あり!

お問い合わせフォーム