takeofficeなら掲載物件の仲介手数料は無料です

虎ノ門上野ビル

住所 東京都港区虎ノ門1-8-13
交通 東京メトロ銀座線虎ノ門」 徒歩2分
東京メトロ丸ノ内線霞ヶ関」 徒歩5分
都営三田線内幸町」 徒歩6分
竣工 1994年05月 構造 RC
規模 地上6階, 地下1階 耐震基準 新耐震基準
床構造 フリーアクセス 50mm 空調設備 個別空調
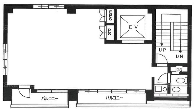
天井高 2420mm 基準階面積 31.92坪(105.52m2)
コンセント容量 - 施工会社

最新の募集状況や類似物件については、
こちらにお問い合わせください。

虎ノ門上野ビル 外観

外観

  • 虎ノ門上野ビル エントランス写真

    エントランス

  • 1F

    1F

  • 6F

    6F

  • B1F

    B1F

内見やお見積りなどの各種お問い合わせ

全物件
仲介手数料無料
仲介から
入居工事まで
ワンストップで対応
経験豊富なスタッフが
スピード感をもって
対応

周辺での似た条件の物件

非公開物件 多数あり!

お問い合わせフォーム