takeofficeなら掲載物件の仲介手数料は無料です

虎ノ門1丁目森ビル

住所 東京都港区虎ノ門1-19-5
交通 東京メトロ銀座線虎ノ門」 徒歩4分
都営三田線内幸町」 徒歩7分
JR山手線新橋」 徒歩8分
竣工 1990年12月 構造 SRC+RC
規模 地上10階, 地下2階 耐震基準 新耐震基準
床構造 - 空調設備 個別空調
天井高 2550mm 基準階面積 103.5坪(342.27m2)
コンセント容量 60VA/m2 施工会社

最新の募集状況や類似物件については、
こちらにお問い合わせください。

虎ノ門1丁目森ビル 外観

外観

  • NOW PRINTING

    エントランス

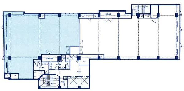
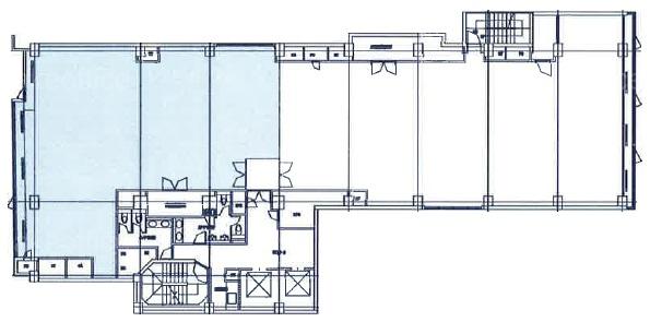
  • 基準階

    基準階

  • 4F

    4F

  • 5F

    5F

  • 10F

    10F

内見やお見積りなどの各種お問い合わせ

全物件
仲介手数料無料
仲介から
入居工事まで
ワンストップで対応
経験豊富なスタッフが
スピード感をもって
対応

周辺での似た条件の物件

非公開物件 多数あり!

お問い合わせフォーム