takeofficeなら掲載物件の仲介手数料は無料です

虎ノ門小澤ビルディング

住所 東京都港区虎ノ門1-21-18
交通 東京メトロ銀座線虎ノ門」 徒歩3分
東京メトロ日比谷線霞ヶ関」 徒歩8分
竣工 1977年11月 構造 SRC
規模 地上9階 耐震基準 旧耐震基準
床構造 フリーアクセス 50mm 空調設備 個別空調
天井高 2300mm 基準階面積 48.1坪(159.01m2)
コンセント容量 - 施工会社

最新の募集状況や類似物件については、
こちらにお問い合わせください。

虎ノ門小澤ビルディング 外観

外観

  • 虎ノ門小澤ビルディング エントランス写真

    エントランス

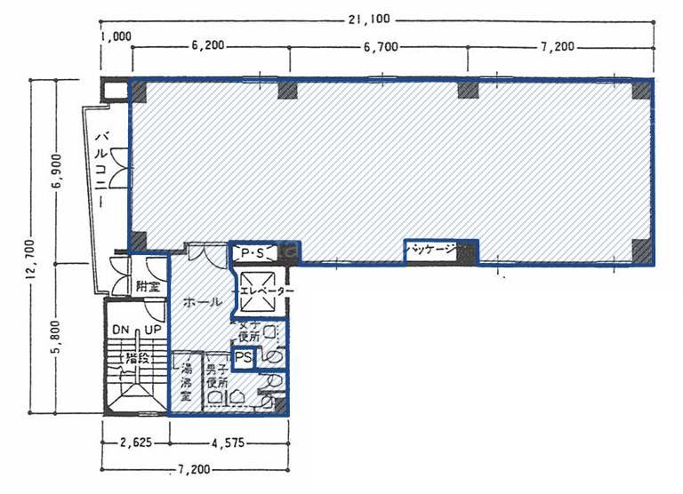
  • 基準階

    基準階

内見やお見積りなどの各種お問い合わせ

全物件
仲介手数料無料
仲介から
入居工事まで
ワンストップで対応
経験豊富なスタッフが
スピード感をもって
対応

周辺での似た条件の物件

非公開物件 多数あり!

お問い合わせフォーム