takeofficeなら掲載物件の仲介手数料は無料です

虎ノ門34MTビル

住所 東京都港区虎ノ門1-25-5
交通 東京メトロ銀座線虎ノ門」 徒歩5分
東京メトロ日比谷線神谷町」 徒歩8分
都営三田線内幸町」 徒歩9分
竣工 1979年02月 構造 SRC
規模 地上9階, 地下1階 耐震基準 新耐震基準
床構造 フリーアクセス 50mm 空調設備 セントラル空調
天井高 2450mm 基準階面積 366坪(1209m2)
コンセント容量 60VA/m2 施工会社

最新の募集状況や類似物件については、
こちらにお問い合わせください。

虎ノ門34MTビル 外観

外観

  • 虎ノ門34MTビル エントランス写真

    エントランス

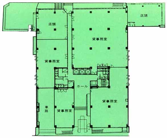
  • 2~4F

    2~4F

  • 1F

    1F

  • 5~9F

    5~9F

内見やお見積りなどの各種お問い合わせ

全物件
仲介手数料無料
仲介から
入居工事まで
ワンストップで対応
経験豊富なスタッフが
スピード感をもって
対応

周辺での似た条件の物件

非公開物件 多数あり!

お問い合わせフォーム