takeofficeなら掲載物件の仲介手数料は無料です

TOKYU REIT虎ノ門ビル

住所 東京都港区虎ノ門3-17-1
交通 東京メトロ日比谷線神谷町」 徒歩1分
東京メトロ銀座線虎ノ門」 徒歩9分
竣工 1988年04月 構造 SRC
規模 地上9階, 地下2階 耐震基準 新耐震基準
床構造 フリーアクセス 空調設備 個別空調
天井高 2450mm 基準階面積 358.35坪(1184.63m2)
コンセント容量 - 施工会社

最新の募集状況や類似物件については、
こちらにお問い合わせください。

TOKYU REIT虎ノ門ビル 外観

外観

  • TOKYU REIT虎ノ門ビル エントランス写真

    エントランス

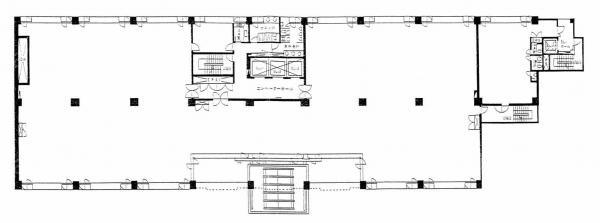
  • 基準階(3~9F)

    基準階(3~9F)

  • 2F

    2F

建物パンフレット

建物パンフレットは作成時点のものであり、また計画段階のものも含まれる為、実際とは異なる場合がございます。

内見やお見積りなどの各種お問い合わせ

全物件
仲介手数料無料
仲介から
入居工事まで
ワンストップで対応
経験豊富なスタッフが
スピード感をもって
対応

周辺での似た条件の物件

非公開物件 多数あり!

お問い合わせフォーム