takeofficeなら掲載物件の仲介手数料は無料です

伊藤佑ビル虎ノ門

住所 東京都港区虎ノ門3-20-5
交通 東京メトロ日比谷線神谷町」 徒歩2分
都営三田線御成門」 徒歩7分
竣工 1992年04月 構造 SRC
規模 地上9階, 地下1階 耐震基準 新耐震基準
床構造 - 空調設備 個別空調
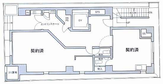
天井高 2400mm 基準階面積 25.36坪(83.83m2)
コンセント容量 - 施工会社

最新の募集状況や類似物件については、
こちらにお問い合わせください。

伊藤佑ビル虎ノ門 外観

外観

内見やお見積りなどの各種お問い合わせ

全物件
仲介手数料無料
仲介から
入居工事まで
ワンストップで対応
経験豊富なスタッフが
スピード感をもって
対応

周辺での似た条件の物件

非公開物件 多数あり!

お問い合わせフォーム