takeofficeなら掲載物件の仲介手数料は無料です

RBM虎ノ門ビル

住所 東京都港区虎ノ門3-23-6
交通 東京メトロ日比谷線神谷町」 徒歩2分
都営三田線御成門」 徒歩6分
竣工 1979年01月 構造 SRC
規模 地上10階 耐震基準 旧耐震基準
床構造 フリーアクセス 50mm 空調設備 セントラル+個別
天井高 2550mm 基準階面積 138.25坪(457.02m2)
コンセント容量 - 施工会社

最新の募集状況や類似物件については、
こちらにお問い合わせください。

RBM虎ノ門ビル 外観

外観

  • NOW PRINTING

    エントランス

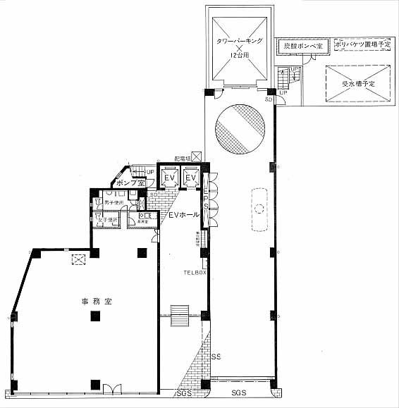
  • 基準階(2~8F)

    基準階(2~8F)

  • 1F

    1F

  • 9F

    9F

内見やお見積りなどの各種お問い合わせ

全物件
仲介手数料無料
仲介から
入居工事まで
ワンストップで対応
経験豊富なスタッフが
スピード感をもって
対応

周辺での似た条件の物件

非公開物件 多数あり!

お問い合わせフォーム