takeofficeなら掲載物件の仲介手数料は無料です

第3松坂ビル

住所 東京都港区虎ノ門4-2-5
交通 東京メトロ日比谷線神谷町」 徒歩1分
都営三田線御成門」 徒歩8分
東京メトロ南北線六本木一丁目」 徒歩8分
竣工 1970年03月 構造 RC
規模 地上9階 耐震基準 旧耐震基準
床構造 - 空調設備 個別空調
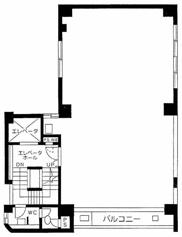
天井高 - 基準階面積 27坪(89.26m2)
コンセント容量 - 施工会社

最新の募集状況や類似物件については、
こちらにお問い合わせください。

第3松坂ビル 外観

外観

内見やお見積りなどの各種お問い合わせ

全物件
仲介手数料無料
仲介から
入居工事まで
ワンストップで対応
経験豊富なスタッフが
スピード感をもって
対応

周辺での似た条件の物件

非公開物件 多数あり!

お問い合わせフォーム