takeofficeなら掲載物件の仲介手数料は無料です

NTT虎ノ門ビル

住所 東京都港区虎ノ門3-8-8
交通 東京メトロ日比谷線神谷町」 徒歩6分
東京メトロ銀座線虎ノ門」 徒歩7分
JR山手線新橋」 徒歩15分
竣工 1986年10月 構造 SRC
規模 地上8階, 地下1階 耐震基準 -
床構造 - 空調設備 -
天井高 2500mm 基準階面積 474.02坪(1567m2)
コンセント容量 20VA/m2 施工会社

最新の募集状況や類似物件については、
こちらにお問い合わせください。

NTT虎ノ門ビル 外観

外観

  • NTT虎ノ門ビル エントランス写真

    エントランス

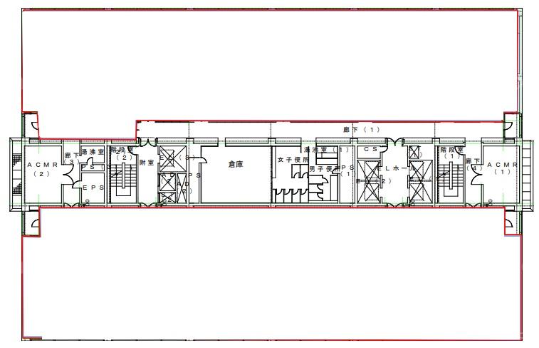
  • 1F

    1F

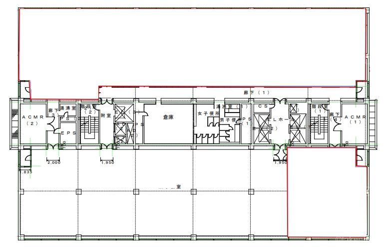
  • 3F

    3F

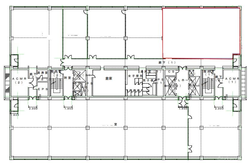
  • 4F

    4F

  • 6F

    6F

内見やお見積りなどの各種お問い合わせ

全物件
仲介手数料無料
仲介から
入居工事まで
ワンストップで対応
経験豊富なスタッフが
スピード感をもって
対応

周辺での似た条件の物件

非公開物件 多数あり!

お問い合わせフォーム