takeofficeなら掲載物件の仲介手数料は無料です

第6新倉ビル

住所 東京都港区赤坂1-7-3
交通 東京メトロ銀座線溜池山王」 徒歩2分
竣工 1983年09月 構造 -
規模 地上10階, 地下1階 耐震基準 新耐震基準
床構造 フリーアクセス 空調設備 個別空調
天井高 - 基準階面積 22.09坪(73.02m2)
コンセント容量 - 施工会社

最新の募集状況や類似物件については、
こちらにお問い合わせください。

第6新倉ビル 外観

外観

  • 第6新倉ビル エントランス写真

    エントランス

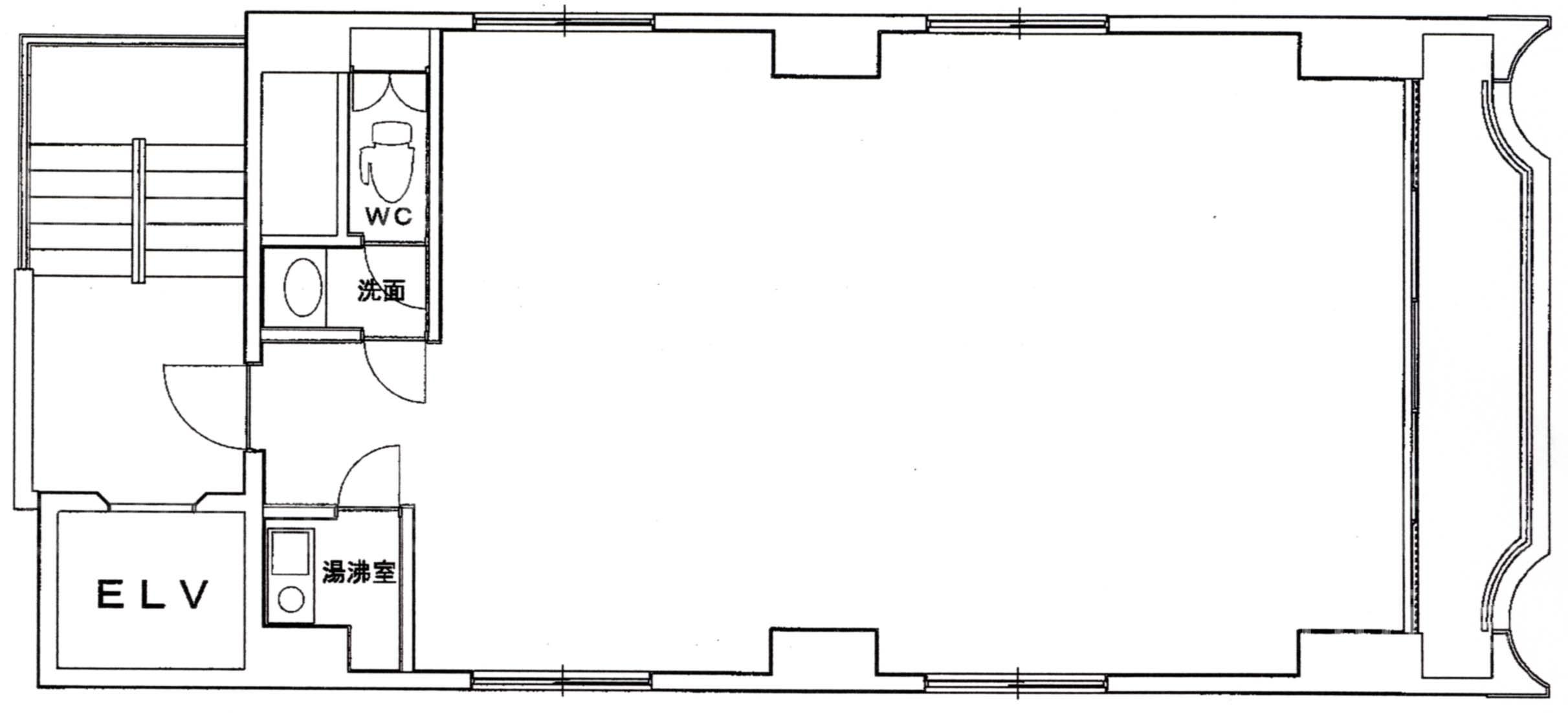
  • 基準階

    基準階

内見やお見積りなどの各種お問い合わせ

全物件
仲介手数料無料
仲介から
入居工事まで
ワンストップで対応
経験豊富なスタッフが
スピード感をもって
対応

周辺での似た条件の物件

非公開物件 多数あり!

お問い合わせフォーム