takeofficeなら掲載物件の仲介手数料は無料です

丸玉第3ビル(旧:オータビル)

住所 東京都港区赤坂2-8-14
交通 東京メトロ銀座線溜池山王」 徒歩3分
東京メトロ千代田線赤坂」 徒歩4分
竣工 1982年10月 構造 SRC
規模 地上9階 耐震基準 新耐震基準
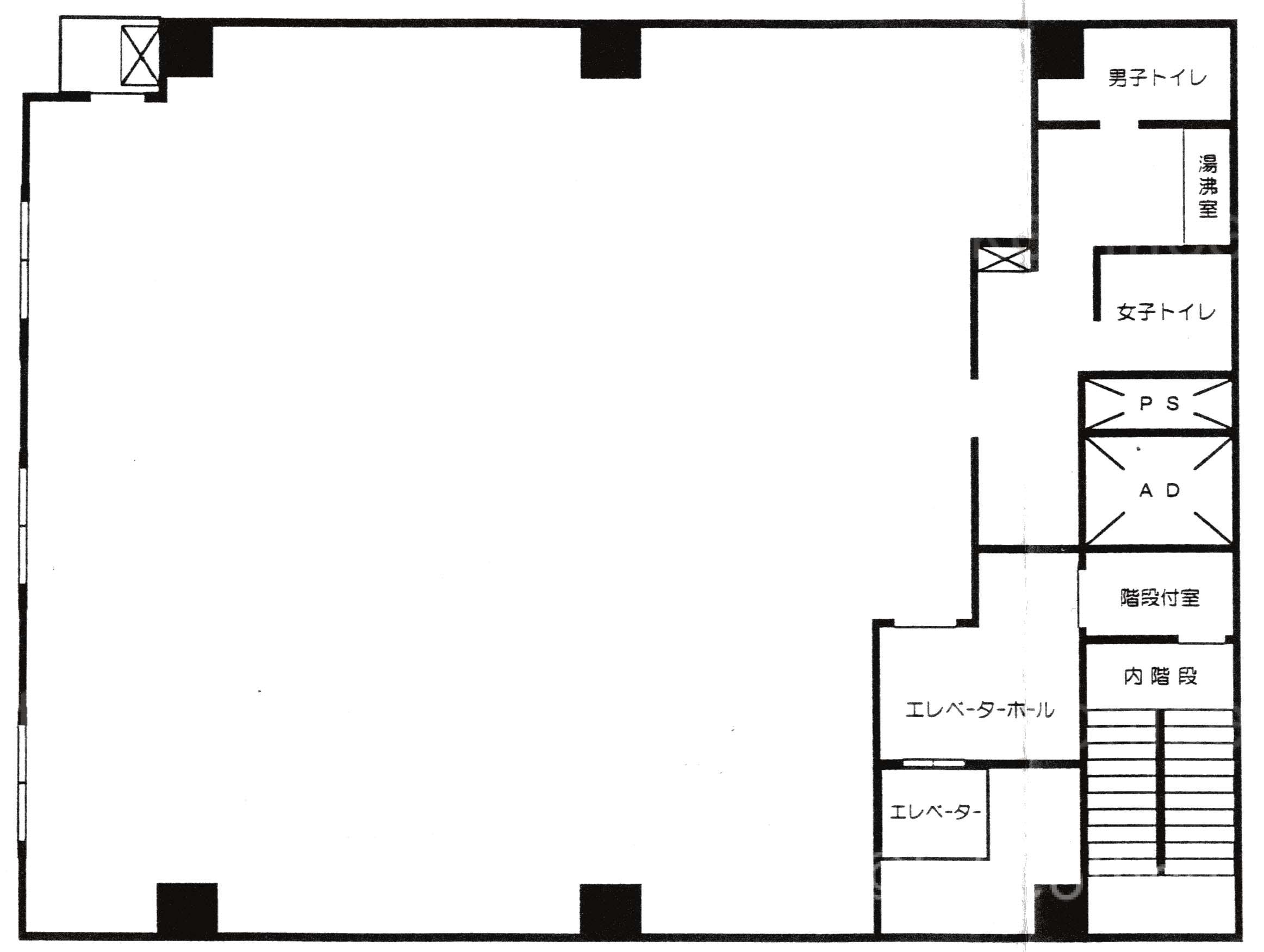
床構造 フリーアクセス 空調設備 個別空調
天井高 2450mm 基準階面積 46.16坪(152.6m2)
コンセント容量 - 施工会社

最新の募集状況や類似物件については、
こちらにお問い合わせください。

丸玉第3ビル(旧:オータビル) 外観

外観

  • NOW PRINTING

    エントランス

  • 3F

    3F

  • 7F

    7F

内見やお見積りなどの各種お問い合わせ

全物件
仲介手数料無料
仲介から
入居工事まで
ワンストップで対応
経験豊富なスタッフが
スピード感をもって
対応

周辺での似た条件の物件

非公開物件 多数あり!

お問い合わせフォーム