takeofficeなら掲載物件の仲介手数料は無料です

ミカワヤビル

住所 東京都港区赤坂2-10-14
交通 東京メトロ銀座線溜池山王」 徒歩1分
東京メトロ千代田線赤坂」 徒歩7分
東京メトロ丸ノ内線国会議事堂前」 徒歩7分
竣工 1973年06月 構造 SRC
規模 地上8階, 地下1階 耐震基準 旧耐震基準
床構造 フリーアクセス 空調設備 個別空調
天井高 2400mm 基準階面積 24坪(79m2)
コンセント容量 - 施工会社

最新の募集状況や類似物件については、
こちらにお問い合わせください。

ミカワヤビル 外観

外観

  • ミカワヤビル エントランス写真

    エントランス

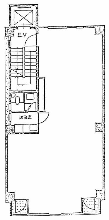
  • 基準階(2~5F)

    基準階(2~5F)

内見やお見積りなどの各種お問い合わせ

全物件
仲介手数料無料
仲介から
入居工事まで
ワンストップで対応
経験豊富なスタッフが
スピード感をもって
対応

周辺での似た条件の物件

非公開物件 多数あり!

お問い合わせフォーム