takeofficeなら掲載物件の仲介手数料は無料です

国際新赤坂ビル東館

住所 東京都港区赤坂2-14-27
交通 東京メトロ千代田線赤坂」 徒歩1分
竣工 1980年09月 構造 鉄骨造+SRC
規模 地上24階, 地下3階 耐震基準 新耐震基準
床構造 フリーアクセス 70mm 空調設備 フロア別空調
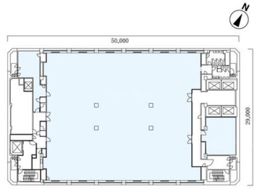
天井高 2530mm 基準階面積 321.38坪(1062.41m2)
コンセント容量 80VA/m2 施工会社

最新の募集状況や類似物件については、
こちらにお問い合わせください。

国際新赤坂ビル東館 外観

外観

  • 国際新赤坂ビル東館 エントランス写真

    エントランス

内見やお見積りなどの各種お問い合わせ

全物件
仲介手数料無料
仲介から
入居工事まで
ワンストップで対応
経験豊富なスタッフが
スピード感をもって
対応

周辺での似た条件の物件

非公開物件 多数あり!

お問い合わせフォーム