takeofficeなら掲載物件の仲介手数料は無料です

赤坂片山ビル

住所 東京都港区赤坂2-16-1
交通 東京メトロ千代田線赤坂」 徒歩3分
東京メトロ銀座線溜池山王」 徒歩6分
東京メトロ丸ノ内線国会議事堂前」 徒歩8分
竣工 1989年03月 構造 RC
規模 地上4階, 地下1階 耐震基準 新耐震基準
床構造 - 空調設備 個別空調
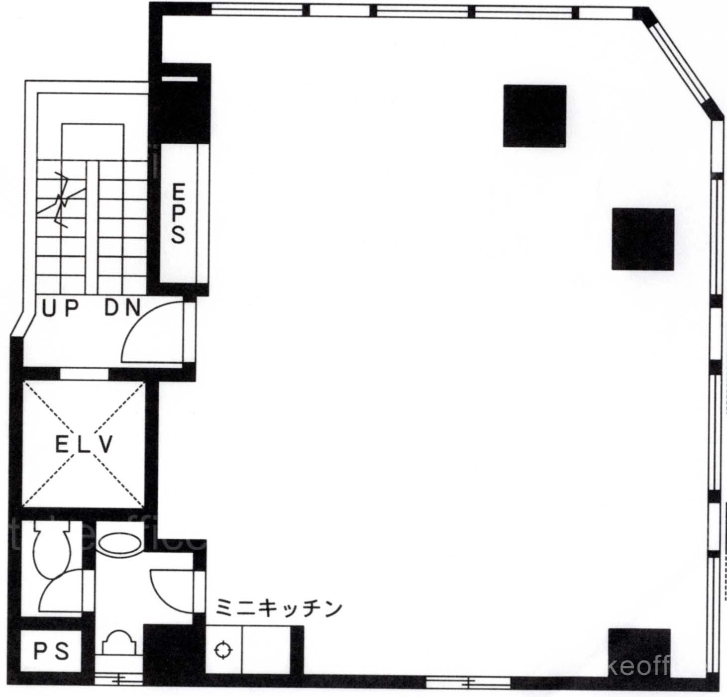
天井高 2450mm 基準階面積 24.5坪(80.99m2)
コンセント容量 - 施工会社

最新の募集状況や類似物件については、
こちらにお問い合わせください。

赤坂片山ビル 外観

外観

  • NOW PRINTING

    エントランス

  • 基準階

    基準階

内見やお見積りなどの各種お問い合わせ

全物件
仲介手数料無料
仲介から
入居工事まで
ワンストップで対応
経験豊富なスタッフが
スピード感をもって
対応

周辺での似た条件の物件

非公開物件 多数あり!

お問い合わせフォーム