takeofficeなら掲載物件の仲介手数料は無料です

内田ビル

住所 東京都港区赤坂2-19-5
交通 東京メトロ銀座線溜池山王」 徒歩3分
東京メトロ南北線六本木一丁目」 徒歩5分
東京メトロ銀座線赤坂見附」 徒歩8分
竣工 1972年12月 構造 -
規模 地上4階 耐震基準 旧耐震基準
床構造 - 空調設備 個別空調
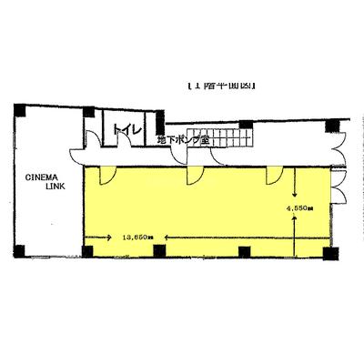
天井高 2330mm 基準階面積 28坪(92m2)
コンセント容量 - 施工会社

最新の募集状況や類似物件については、
こちらにお問い合わせください。

内田ビル 外観

外観

  • 内田ビル エントランス写真

    エントランス

内見やお見積りなどの各種お問い合わせ

全物件
仲介手数料無料
仲介から
入居工事まで
ワンストップで対応
経験豊富なスタッフが
スピード感をもって
対応

周辺での似た条件の物件

非公開物件 多数あり!

お問い合わせフォーム