takeofficeなら掲載物件の仲介手数料は無料です

No.R赤坂見附

住所 東京都港区赤坂3-9-2
交通 東京メトロ銀座線赤坂見附」 徒歩1分
東京メトロ千代田線赤坂」 徒歩7分
竣工 2015年03月 構造 鉄骨造+SRC
規模 地上9階, 地下1階 耐震基準 新耐震基準
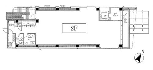
床構造 フリーアクセス 100mm 空調設備 個別空調
天井高 2700mm 基準階面積 56.25坪(185.95m2)
コンセント容量 50VA/m2 施工会社 フジタ

最新の募集状況や類似物件については、
こちらにお問い合わせください。

No.R赤坂見附 外観

外観

建物パンフレット

建物パンフレットは作成時点のものであり、また計画段階のものも含まれる為、実際とは異なる場合がございます。

内見やお見積りなどの各種お問い合わせ

全物件
仲介手数料無料
仲介から
入居工事まで
ワンストップで対応
経験豊富なスタッフが
スピード感をもって
対応

周辺での似た条件の物件

非公開物件 多数あり!

お問い合わせフォーム