takeofficeなら掲載物件の仲介手数料は無料です

SKI赤坂ビル

住所 東京都港区赤坂3-21-16
交通 東京メトロ丸ノ内線赤坂見附」 徒歩2分
東京メトロ半蔵門線永田町」 徒歩4分
竣工 1999年05月 構造 SRC
規模 地上9階, 地下1階 耐震基準 新耐震基準
床構造 フリーアクセス 空調設備 個別空調
天井高 - 基準階面積 76.19坪(251.87m2)
コンセント容量 - 施工会社

最新の募集状況や類似物件については、
こちらにお問い合わせください。

SKI赤坂ビル 外観

外観

  • SKI赤坂ビル エントランス写真

    エントランス

  • 基準階(2~9F)

    基準階(2~9F)

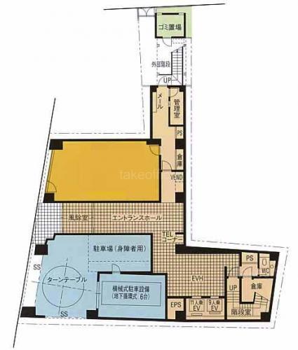
  • 1F

    1F

内見やお見積りなどの各種お問い合わせ

全物件
仲介手数料無料
仲介から
入居工事まで
ワンストップで対応
経験豊富なスタッフが
スピード感をもって
対応

周辺での似た条件の物件

非公開物件 多数あり!

お問い合わせフォーム