takeofficeなら掲載物件の仲介手数料は無料です

赤坂ロングビーチビル

住所 東京都港区赤坂3-21-20
交通 東京メトロ丸ノ内線赤坂見附」 徒歩1分
竣工 1974年12月 構造 SRC
規模 地上9階, 地下1階 耐震基準 耐震診断書有
床構造 - 空調設備 個別空調
天井高 2450mm 基準階面積 221.17坪(731.14m2)
コンセント容量 - 施工会社

最新の募集状況や類似物件については、
こちらにお問い合わせください。

赤坂ロングビーチビル 外観

外観

  • 赤坂ロングビーチビル エントランス写真

    エントランス

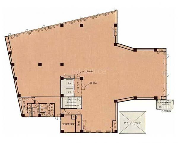
  • 基準階

    基準階

  • 1F

    1F

内見やお見積りなどの各種お問い合わせ

全物件
仲介手数料無料
仲介から
入居工事まで
ワンストップで対応
経験豊富なスタッフが
スピード感をもって
対応

周辺での似た条件の物件

非公開物件 多数あり!

お問い合わせフォーム