takeofficeなら掲載物件の仲介手数料は無料です

赤坂進興ビル

住所 東京都港区赤坂4-7-14
交通 東京メトロ銀座線赤坂見附」 徒歩4分
東京メトロ半蔵門線永田町」 徒歩5分
東京メトロ千代田線赤坂」 徒歩6分
竣工 1990年04月 構造 RC
規模 地上5階, 地下1階 耐震基準 新耐震基準
床構造 - 空調設備 個別空調
天井高 2390mm 基準階面積 127.94坪(422.94m2)
コンセント容量 - 施工会社
坪面積 用途 賃料 坪単価 共益費 入居可能日
4 101.11坪 事務所 相談 相談 相談
B1 132.35坪 事務所 相談 相談 相談
5 74.8坪 事務所 相談 相談 相談
1 96.36坪 事務所 相談 相談 相談
3 126.7坪 事務所 相談 相談 相談
2 126.7坪 事務所 相談 相談 相談
赤坂進興ビル 外観

外観

  • 赤坂進興ビル エントランス写真

    エントランス

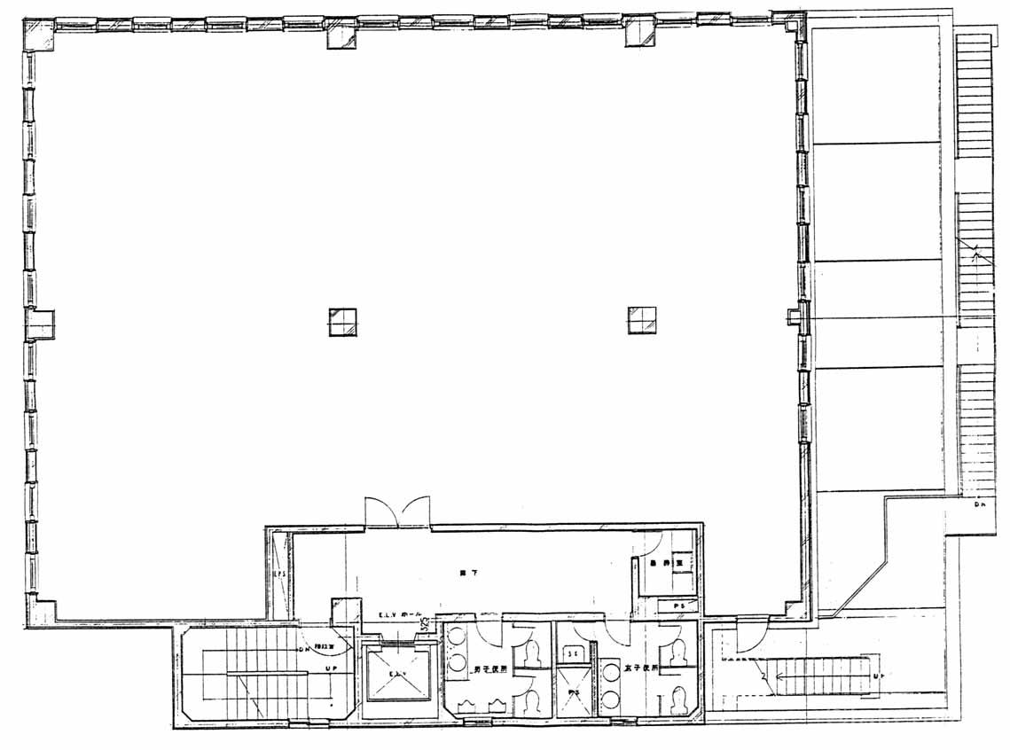
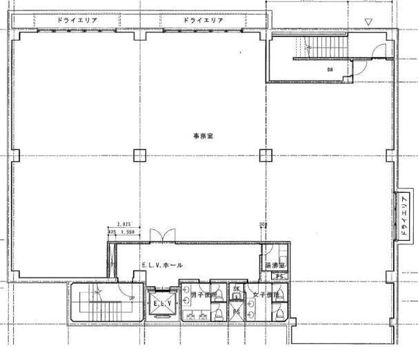
  • 基準階(2~3F)

    基準階(2~3F)

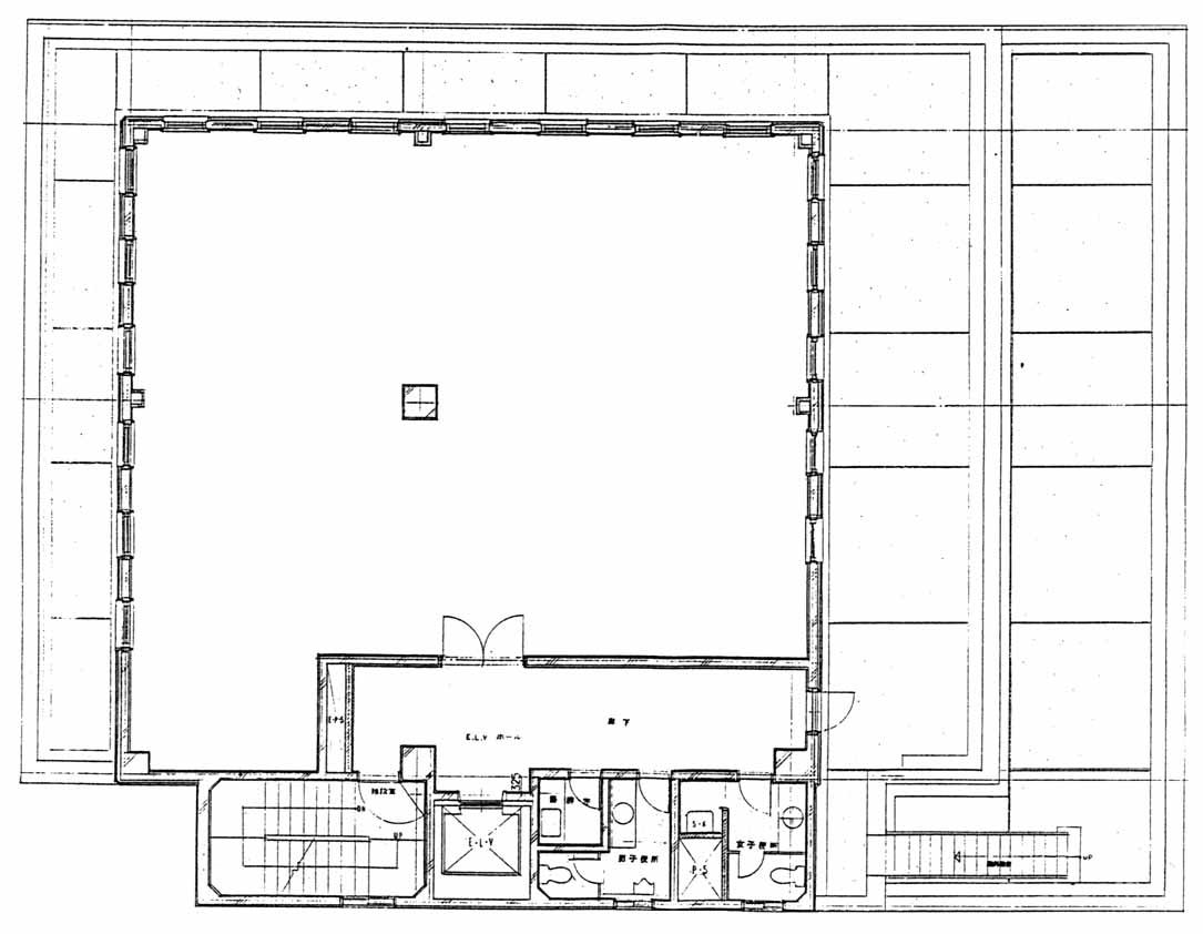
  • 1F

    1F

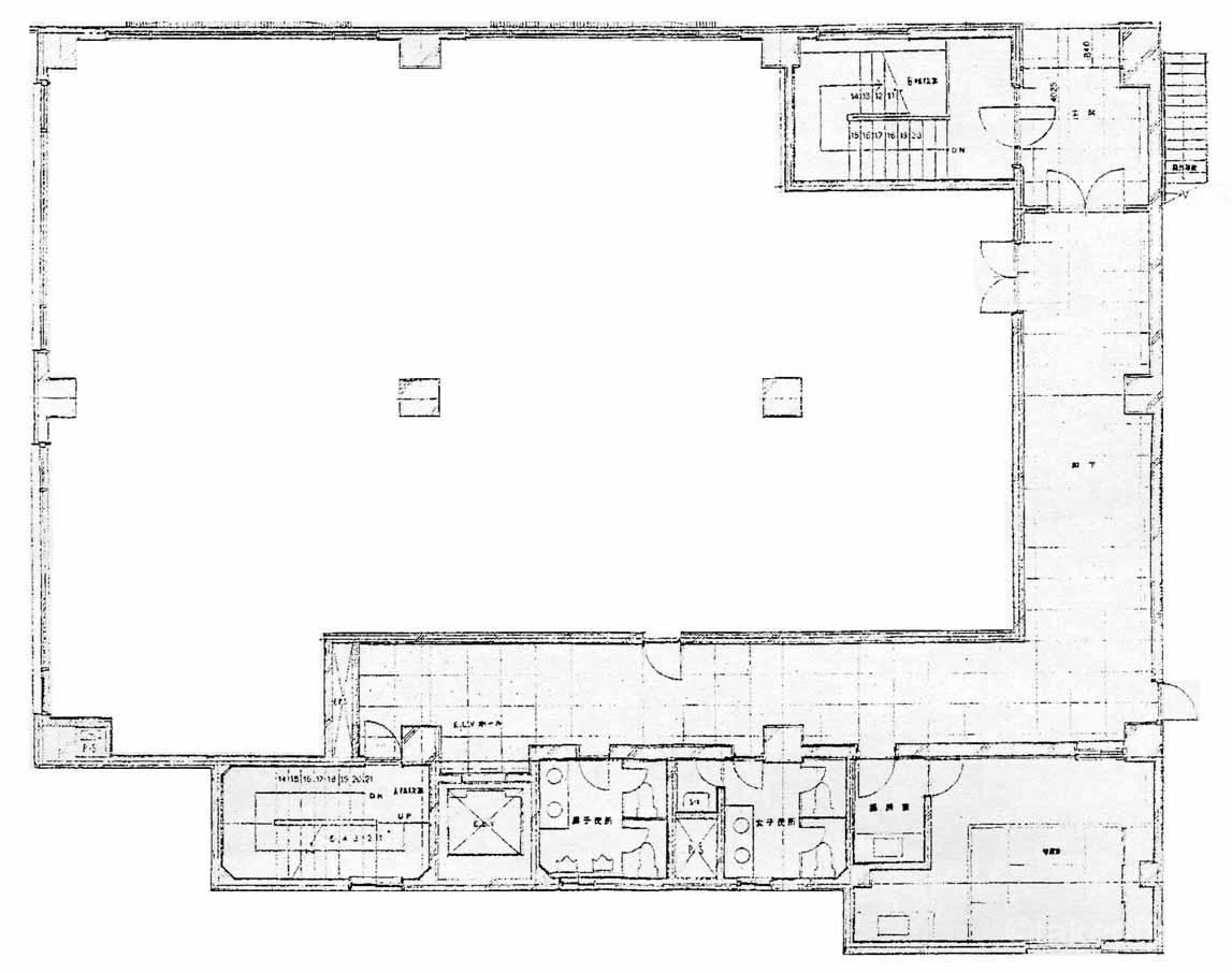
  • 4F

    4F

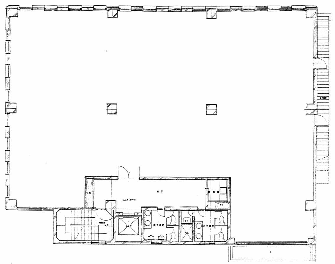
  • 5~6F

    5~6F

建物パンフレット

建物パンフレットは作成時点のものであり、また計画段階のものも含まれる為、実際とは異なる場合がございます。

内見やお見積りなどの各種お問い合わせ

全物件
仲介手数料無料
仲介から
入居工事まで
ワンストップで対応
経験豊富なスタッフが
スピード感をもって
対応

※「ご相談」と記載されている項目について
賃貸人が募集賃料条件を守秘義務の関係から明示していない場合に、【ご相談】と記載しております。
フリーレント(賃料免除)期間、使用面積、入居時期、テナント様の与信などによりご提示できる条件が若干変化いたします。
お手数ですが、詳細につきましては、上記よりお問い合わせください。

周辺での似た条件の物件

非公開物件 多数あり!

お問い合わせフォーム