takeofficeなら掲載物件の仲介手数料は無料です

クレイン赤坂

住所 東京都港区赤坂6-2-8
交通 東京メトロ千代田線赤坂」 徒歩2分
東京メトロ銀座線溜池山王」 徒歩5分
竣工 1993年03月 構造 RC
規模 地上3階 耐震基準 新耐震基準
床構造 フリーアクセス 50mm 空調設備 個別空調
天井高 2400mm 基準階面積 43.75坪(144.63m2)
コンセント容量 - 施工会社

最新の募集状況や類似物件については、
こちらにお問い合わせください。

クレイン赤坂 外観

外観

  • クレイン赤坂 エントランス写真

    エントランス

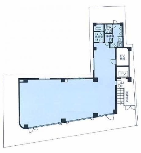
  • 基準階(2~3F)

    基準階(2~3F)

  • 1F

    1F

内見やお見積りなどの各種お問い合わせ

全物件
仲介手数料無料
仲介から
入居工事まで
ワンストップで対応
経験豊富なスタッフが
スピード感をもって
対応

周辺での似た条件の物件

非公開物件 多数あり!

お問い合わせフォーム