takeofficeなら掲載物件の仲介手数料は無料です

氷川パークビル

住所 東京都港区赤坂6-6-24
交通 東京メトロ千代田線赤坂」 徒歩5分
東京メトロ銀座線溜池山王」 徒歩7分
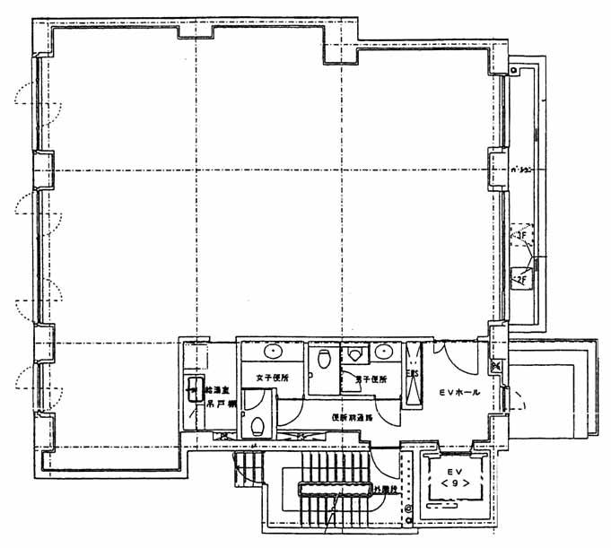
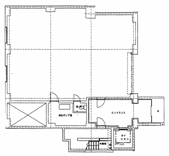
竣工 2001年05月 構造 SRC
規模 地上4階, 地下1階 耐震基準 新耐震基準
床構造 フリーアクセス 50mm 空調設備 個別空調
天井高 2650mm 基準階面積 40.26坪(133.09m2)
コンセント容量 - 施工会社

最新の募集状況や類似物件については、
こちらにお問い合わせください。

氷川パークビル 外観

外観

内見やお見積りなどの各種お問い合わせ

全物件
仲介手数料無料
仲介から
入居工事まで
ワンストップで対応
経験豊富なスタッフが
スピード感をもって
対応

周辺での似た条件の物件

非公開物件 多数あり!

お問い合わせフォーム