takeofficeなら掲載物件の仲介手数料は無料です

赤坂檜町ビル

住所 東京都港区赤坂6-14-15
交通 東京メトロ千代田線赤坂」 徒歩3分
都営大江戸線六本木」 徒歩9分
竣工 1984年08月 構造 RC
規模 地上7階, 地下0階 耐震基準 新耐震基準
床構造 フリーアクセス 50mm 空調設備 個別空調
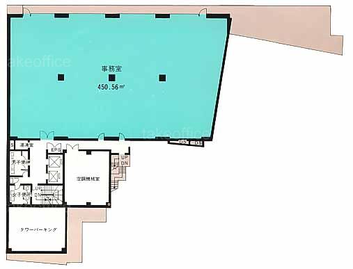
天井高 2500mm 基準階面積 136.29坪(450.56m2)
コンセント容量 - 施工会社

最新の募集状況や類似物件については、
こちらにお問い合わせください。

赤坂檜町ビル 外観

外観

  • 赤坂檜町ビル エントランス写真

    エントランス

  • 基準階(4~6F)

    基準階(4~6F)

  • 1F

    1F

  • 2~3F

    2~3F

建物パンフレット

建物パンフレットは作成時点のものであり、また計画段階のものも含まれる為、実際とは異なる場合がございます。

内見やお見積りなどの各種お問い合わせ

全物件
仲介手数料無料
仲介から
入居工事まで
ワンストップで対応
経験豊富なスタッフが
スピード感をもって
対応

周辺での似た条件の物件

非公開物件 多数あり!

お問い合わせフォーム