takeofficeなら掲載物件の仲介手数料は無料です

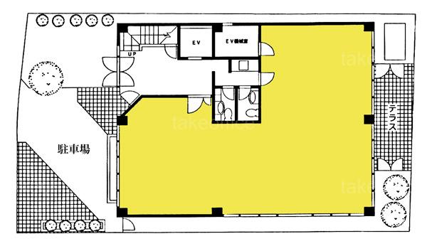
イワキビル

住所 東京都港区赤坂9-6-12
交通 東京メトロ千代田線乃木坂」 徒歩4分
東京メトロ日比谷線六本木」 徒歩5分
東京メトロ半蔵門線青山一丁目」 徒歩12分
竣工 1987年01月 構造 RC
規模 地上4階, 地下0階 耐震基準 新耐震基準
床構造 フリーアクセス 空調設備 個別空調
天井高 2420mm 基準階面積 --
コンセント容量 - 施工会社

最新の募集状況や類似物件については、
こちらにお問い合わせください。

イワキビル 外観

外観

  • イワキビル エントランス写真

    エントランス

内見やお見積りなどの各種お問い合わせ

全物件
仲介手数料無料
仲介から
入居工事まで
ワンストップで対応
経験豊富なスタッフが
スピード感をもって
対応

周辺での似た条件の物件

非公開物件 多数あり!

お問い合わせフォーム