| 住所 | 東京都港区赤坂2-17-22 | ||
|---|---|---|---|
| 交通 |
東京メトロ銀座線 「溜池山王」 徒歩1分 東京メトロ丸ノ内線 「国会議事堂前」 徒歩1分 東京メトロ千代田線 「赤坂」 徒歩6分 |
||
| 竣工 | 2024年08月 | 構造 | 鉄骨造+SRC |
|---|---|---|---|
| 規模 | 地上43階, 地下3階 | 耐震基準 | 新耐震基準 |
| 床構造 | フリーアクセス 100mm | 空調設備 | ゾーン空調 |
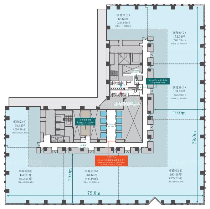
| 天井高 | 2900mm | 基準階面積 | 1013.27坪(3349.65m2) |
| コンセント容量 | 50VA/m2 | 施工会社 | 大成建設 |
| 階 | 坪面積 | 用途 | 賃料 | 坪単価 | 共益費 | 入居可能日 |
|---|---|---|---|---|---|---|
| 5 | 143.38坪 | 事務所 | 相談 | 相談 | 相談 | 2026年8月 |
| 3 | 37.75坪 | 事務所 | 相談 | 相談 | 相談 | 相談 |
| 22 | 798.49坪 | 事務所 | 相談 | 相談 | 相談 | 相談 |
| 5 | 136.69坪 | 事務所 | 相談 | 相談 | 相談 | 2026年8月 |
建物パンフレットは作成時点のものであり、また計画段階のものも含まれる為、実際とは異なる場合がございます。
※「ご相談」と記載されている項目について
賃貸人が募集賃料条件を守秘義務の関係から明示していない場合に、【ご相談】と記載しております。
フリーレント(賃料免除)期間、使用面積、入居時期、テナント様の与信などによりご提示できる条件が若干変化いたします。
お手数ですが、詳細につきましては、上記よりお問い合わせください。