takeofficeなら掲載物件の仲介手数料は無料です

芝NBFタワー

住所 東京都港区芝大門1-1-30
交通 都営三田線御成門」 徒歩3分
都営浅草線大門」 徒歩3分
JR山手線浜松町」 徒歩9分
竣工 1986年10月 構造 鉄骨造+SRC
規模 地上18階, 地下3階 耐震基準 新耐震基準
床構造 フリーアクセス 50mm 空調設備 ゾーン空調
天井高 2550mm 基準階面積 367.63坪(1215.32m2)
コンセント容量 - 施工会社

最新の募集状況や類似物件については、
こちらにお問い合わせください。

芝NBFタワー 外観

外観

  • 芝NBFタワー エントランス写真

    エントランス

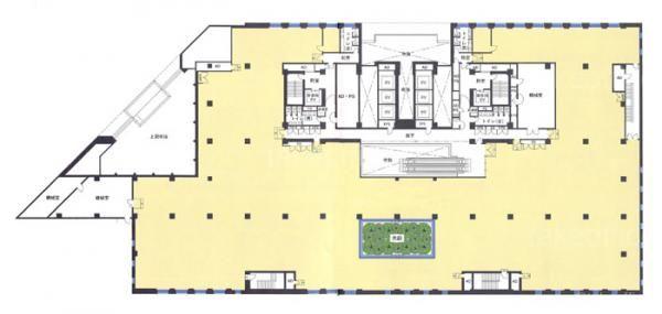
  • 基準階(4~17F)

    基準階(4~17F)

  • 1F

    1F

  • 2F

    2F

  • 3F

    3F

  • B1F

    B1F

建物パンフレット

建物パンフレットは作成時点のものであり、また計画段階のものも含まれる為、実際とは異なる場合がございます。

内見やお見積りなどの各種お問い合わせ

全物件
仲介手数料無料
仲介から
入居工事まで
ワンストップで対応
経験豊富なスタッフが
スピード感をもって
対応

周辺での似た条件の物件

非公開物件 多数あり!

お問い合わせフォーム