takeofficeなら掲載物件の仲介手数料は無料です

野依ビル

住所 東京都港区芝大門1-2-18
交通 都営大江戸線大門」 徒歩6分
JR京浜東北線浜松町」 徒歩7分
東京モノレール浜松町」 徒歩7分
竣工 1988年09月 構造 SRC
規模 地上5階 耐震基準 新耐震基準
床構造 フリーアクセス 空調設備 個別空調
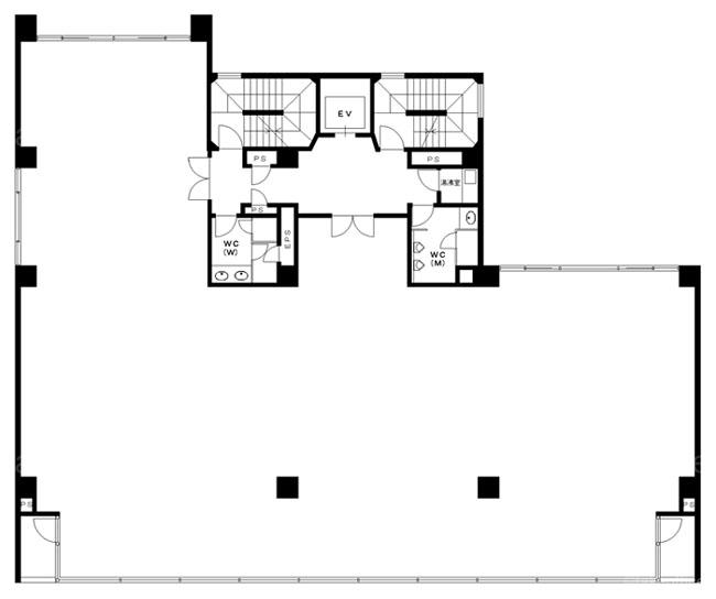
天井高 - 基準階面積 112.23坪(371.01m2)
コンセント容量 - 施工会社

最新の募集状況や類似物件については、
こちらにお問い合わせください。

野依ビル 外観

外観

  • NOW PRINTING

    エントランス

  • 基準階(2~3F)

    基準階(2~3F)

  • 4F

    4F

内見やお見積りなどの各種お問い合わせ

全物件
仲介手数料無料
仲介から
入居工事まで
ワンストップで対応
経験豊富なスタッフが
スピード感をもって
対応

周辺での似た条件の物件

非公開物件 多数あり!

お問い合わせフォーム