takeofficeなら掲載物件の仲介手数料は無料です

ACN芝大門ビル

住所 東京都港区芝大門2-2-1
交通 都営大江戸線大門」 徒歩1分
JR山手線浜松町」 徒歩5分
都営三田線芝公園」 徒歩6分
竣工 1987年04月 構造 SRC
規模 地上9階 耐震基準 新耐震基準
床構造 フリーアクセス 75mm 空調設備 個別空調
天井高 2600mm 基準階面積 159.65坪(527.77m2)
コンセント容量 - 施工会社

最新の募集状況や類似物件については、
こちらにお問い合わせください。

ACN芝大門ビル 外観

外観

  • ACN芝大門ビル エントランス写真

    エントランス

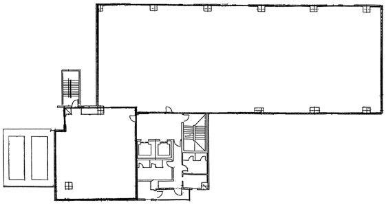
  • 基準階(3~8F)

    基準階(3~8F)

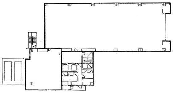
  • 1F

    1F

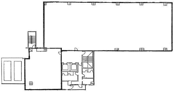
  • 2F

    2F

  • 9F

    9F

内見やお見積りなどの各種お問い合わせ

全物件
仲介手数料無料
仲介から
入居工事まで
ワンストップで対応
経験豊富なスタッフが
スピード感をもって
対応

周辺での似た条件の物件

非公開物件 多数あり!

お問い合わせフォーム