takeofficeなら掲載物件の仲介手数料は無料です

加登ビル

住所 東京都港区芝大門2-9-14
交通 都営三田線芝公園」 徒歩3分
都営大江戸線大門」 徒歩5分
JR山手線浜松町」 徒歩6分
竣工 1992年07月 構造 SRC
規模 地上10階 耐震基準 新耐震基準
床構造 フリーアクセス 空調設備 個別空調
天井高 - 基準階面積 30.84坪(101.95m2)
コンセント容量 - 施工会社

最新の募集状況や類似物件については、
こちらにお問い合わせください。

加登ビル 外観

外観

  • 加登ビル エントランス写真

    エントランス

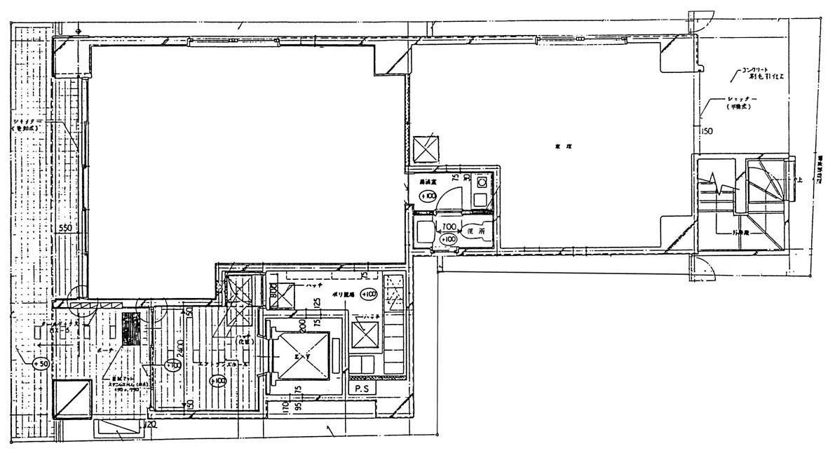
  • 基準階(2~8F)

    基準階(2~8F)

  • 1F

    1F

内見やお見積りなどの各種お問い合わせ

全物件
仲介手数料無料
仲介から
入居工事まで
ワンストップで対応
経験豊富なスタッフが
スピード感をもって
対応

周辺での似た条件の物件

非公開物件 多数あり!

お問い合わせフォーム