takeofficeなら掲載物件の仲介手数料は無料です

第1大門ビル

住所 東京都港区芝大門2-10-1
交通 都営浅草線大門」 徒歩3分
都営三田線芝公園」 徒歩4分
JR山手線浜松町」 徒歩5分
竣工 1974年09月 構造 SRC
規模 地上8階, 地下1階 耐震基準 旧耐震基準
床構造 フリーアクセス 空調設備 個別空調
天井高 2400mm 基準階面積 110坪(364m2)
コンセント容量 - 施工会社

最新の募集状況や類似物件については、
こちらにお問い合わせください。

第1大門ビル 外観

外観

  • 第1大門ビル エントランス写真

    エントランス

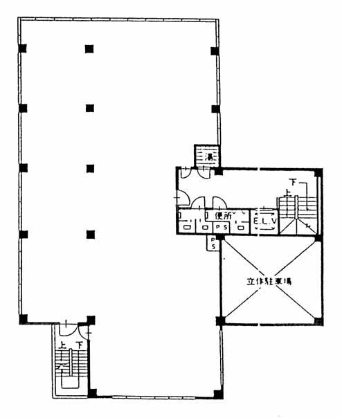
  • 基準階(2~3F)

    基準階(2~3F)

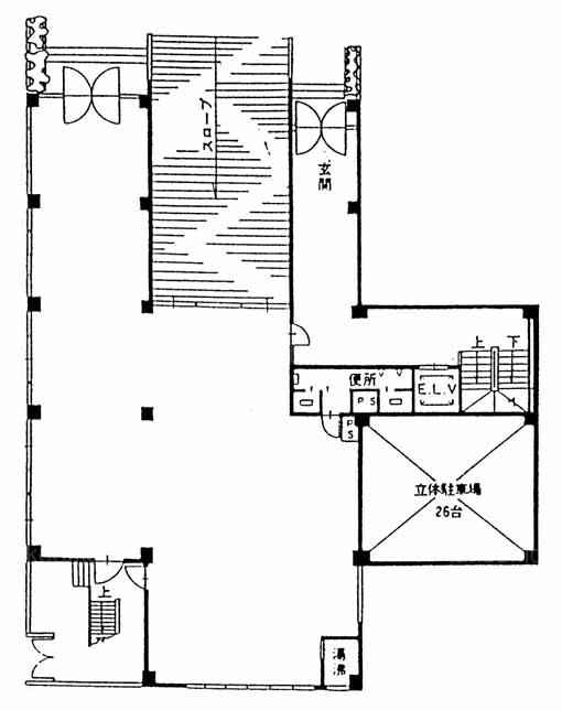
  • 1F

    1F

  • 4~5F

    4~5F

  • 6F

    6F

  • 7F

    7F

内見やお見積りなどの各種お問い合わせ

全物件
仲介手数料無料
仲介から
入居工事まで
ワンストップで対応
経験豊富なスタッフが
スピード感をもって
対応

周辺での似た条件の物件

非公開物件 多数あり!

お問い合わせフォーム