takeofficeなら掲載物件の仲介手数料は無料です

浜松町矢崎ホワイトビル

住所 東京都港区芝大門2-12-8
交通 JR京浜東北線浜松町」 徒歩4分
都営浅草線大門」 徒歩4分
都営三田線芝公園」 徒歩5分
竣工 1984年02月 構造 SRC
規模 地上10階 耐震基準 新耐震基準
床構造 - 空調設備 個別空調
天井高 2500mm 基準階面積 39.07坪(129.16m2)
コンセント容量 - 施工会社

最新の募集状況や類似物件については、
こちらにお問い合わせください。

浜松町矢崎ホワイトビル 外観

外観

  • 浜松町矢崎ホワイトビル エントランス写真

    エントランス

  • 2~3F

    2~3F

  • 1F

    1F

  • 4F

    4F

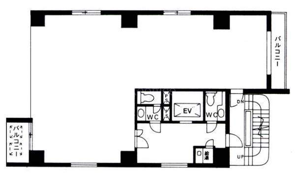
  • 6~8F

    6~8F

内見やお見積りなどの各種お問い合わせ

全物件
仲介手数料無料
仲介から
入居工事まで
ワンストップで対応
経験豊富なスタッフが
スピード感をもって
対応

周辺での似た条件の物件

非公開物件 多数あり!

お問い合わせフォーム