takeofficeなら掲載物件の仲介手数料は無料です

浜松町丸進ビル

住所 東京都港区浜松町1-2-5
交通 都営大江戸線大門」 徒歩7分
JR山手線浜松町」 徒歩8分
都営大江戸線汐留」 徒歩8分
竣工 1982年 月 構造 RC
規模 地上5階 耐震基準 旧耐震基準
床構造 - 空調設備 個別空調
天井高 - 基準階面積 33.5坪(110.74m2)
コンセント容量 - 施工会社

最新の募集状況や類似物件については、
こちらにお問い合わせください。

浜松町丸進ビル 外観

外観

  • 浜松町丸進ビル エントランス写真

    エントランス

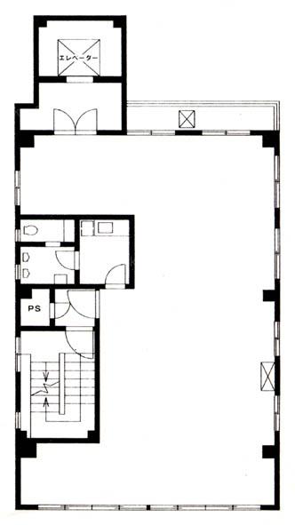
  • 基準階(2~4F)

    基準階(2~4F)

内見やお見積りなどの各種お問い合わせ

全物件
仲介手数料無料
仲介から
入居工事まで
ワンストップで対応
経験豊富なスタッフが
スピード感をもって
対応

周辺での似た条件の物件

非公開物件 多数あり!

お問い合わせフォーム