takeofficeなら掲載物件の仲介手数料は無料です

KDX浜松町センタービル

住所 東京都港区浜松町1-22-5
交通 JR山手線浜松町」 徒歩4分
都営大江戸線大門」 徒歩4分
竣工 1985年12月 構造 SRC
規模 地上7階 耐震基準 新耐震基準
床構造 フリーアクセス 50mm 空調設備 個別空調
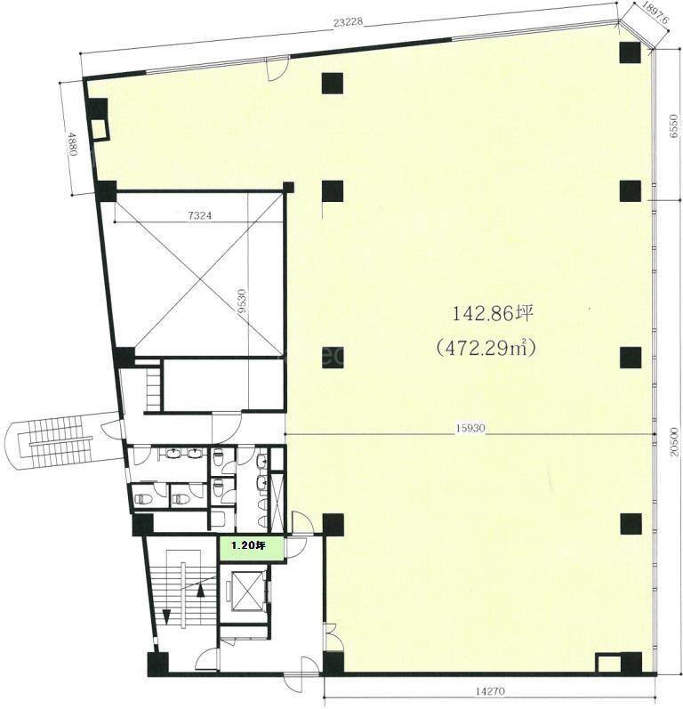
天井高 2600mm 基準階面積 142.86坪(472.26m2)
コンセント容量 20VA/m2 施工会社

最新の募集状況や類似物件については、
こちらにお問い合わせください。

KDX浜松町センタービル 外観

外観

  • KDX浜松町センタービル エントランス写真

    エントランス

  • 基準階(2~6F)

    基準階(2~6F)

  • 1F

    1F

  • 7F

    7F

内見やお見積りなどの各種お問い合わせ

全物件
仲介手数料無料
仲介から
入居工事まで
ワンストップで対応
経験豊富なスタッフが
スピード感をもって
対応

周辺での似た条件の物件

非公開物件 多数あり!

お問い合わせフォーム