takeofficeなら掲載物件の仲介手数料は無料です

大塚ビル

住所 東京都港区浜松町2-2-6
交通 JR山手線浜松町」 徒歩2分
都営浅草線大門」 徒歩3分
竣工 1990年11月 構造 RC
規模 地上6階, 地下1階 耐震基準 新耐震基準
床構造 - 空調設備 個別空調
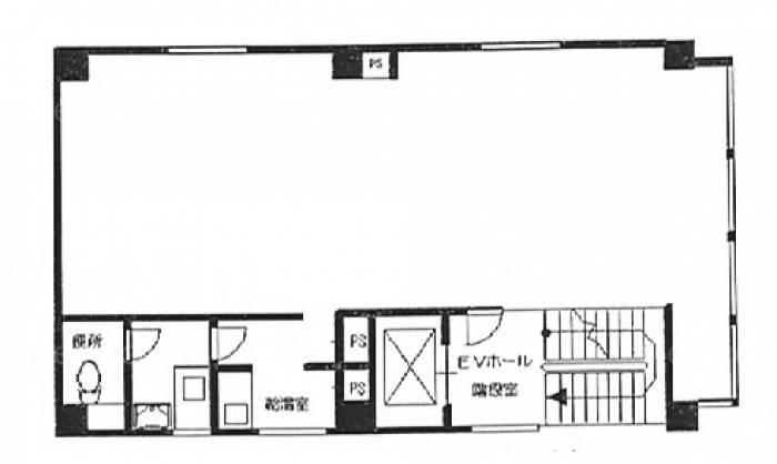
天井高 2400mm 基準階面積 24坪(80m2)
コンセント容量 - 施工会社

最新の募集状況や類似物件については、
こちらにお問い合わせください。

大塚ビル 外観

外観

  • 大塚ビル エントランス写真

    エントランス

内見やお見積りなどの各種お問い合わせ

全物件
仲介手数料無料
仲介から
入居工事まで
ワンストップで対応
経験豊富なスタッフが
スピード感をもって
対応

周辺での似た条件の物件

非公開物件 多数あり!

お問い合わせフォーム