takeofficeなら掲載物件の仲介手数料は無料です

中村ビル

住所 東京都港区浜松町2-12-11
交通 JR山手線浜松町」 徒歩5分
都営大江戸線大門」 徒歩6分
都営三田線芝公園」 徒歩7分
竣工 1973年03月 構造 SRC+RC
規模 地上7階, 地下1階 耐震基準 旧耐震基準
床構造 フリーアクセス 50mm 空調設備 個別空調
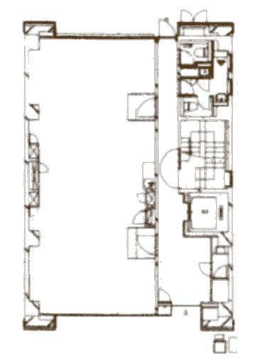
天井高 2550mm 基準階面積 36.42坪(120.4m2)
コンセント容量 - 施工会社

最新の募集状況や類似物件については、
こちらにお問い合わせください。

中村ビル 外観

外観

  • 中村ビル エントランス写真

    エントランス

  • 1F

    1F

内見やお見積りなどの各種お問い合わせ

全物件
仲介手数料無料
仲介から
入居工事まで
ワンストップで対応
経験豊富なスタッフが
スピード感をもって
対応

周辺での似た条件の物件

非公開物件 多数あり!

お問い合わせフォーム