takeofficeなら掲載物件の仲介手数料は無料です

昭和アステック3号館

住所 東京都港区浜松町1-12-14
交通 都営大江戸線大門」 徒歩4分
JR山手線浜松町」 徒歩6分
都営三田線御成門」 徒歩7分
竣工 1971年12月 構造 RC
規模 地上6階 耐震基準 旧耐震基準
床構造 - 空調設備 個別空調
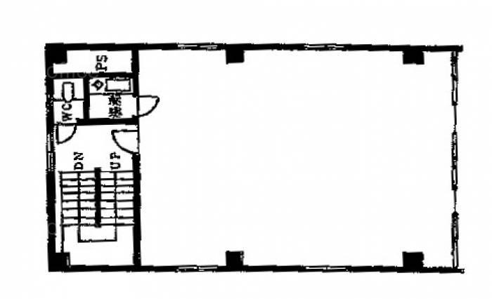
天井高 - 基準階面積 21.4坪(70.74m2)
コンセント容量 - 施工会社

最新の募集状況や類似物件については、
こちらにお問い合わせください。

昭和アステック3号館 外観

外観

  • 昭和アステック3号館 エントランス写真

    エントランス

内見やお見積りなどの各種お問い合わせ

全物件
仲介手数料無料
仲介から
入居工事まで
ワンストップで対応
経験豊富なスタッフが
スピード感をもって
対応

周辺での似た条件の物件

非公開物件 多数あり!

お問い合わせフォーム