takeofficeなら掲載物件の仲介手数料は無料です

AMANO芝公園ビル

住所 東京都港区芝公園1-2-8
交通 都営三田線御成門」 徒歩3分
都営大江戸線大門」 徒歩6分
JR山手線浜松町」 徒歩10分
竣工 2021年02月 構造 鉄骨造
規模 地上8階 耐震基準 新耐震基準
床構造 フリーアクセス 50mm 空調設備 個別空調
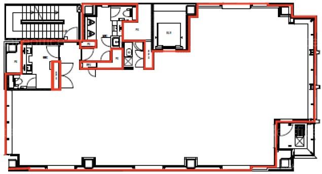
天井高 2550mm 基準階面積 48.81坪(161.36m2)
コンセント容量 50VA/m2 施工会社 東レ建設

最新の募集状況や類似物件については、
こちらにお問い合わせください。

AMANO芝公園ビル 外観

外観

内見やお見積りなどの各種お問い合わせ

全物件
仲介手数料無料
仲介から
入居工事まで
ワンストップで対応
経験豊富なスタッフが
スピード感をもって
対応

周辺での似た条件の物件

非公開物件 多数あり!

お問い合わせフォーム