takeofficeなら掲載物件の仲介手数料は無料です

浜松町ビル

住所 東京都港区浜松町1-17-14
交通 JR京浜東北線浜松町」 徒歩5分
都営大江戸線大門」 徒歩3分
竣工 1993年05月 構造 SRC+鉄骨造
規模 地上8階, 地下2階 耐震基準 新耐震基準
床構造 フリーアクセス 50mm 空調設備 個別空調
天井高 2500mm 基準階面積 134.9坪(445.95m2)
コンセント容量 - 施工会社 大成建設
坪面積 用途 賃料 坪単価 共益費 入居可能日
B2 20.05坪 事務所 相談 相談 相談
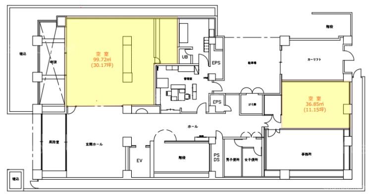
1 30.17坪 事務所 相談 相談 相談
1 11.15坪 事務所 相談 相談 相談
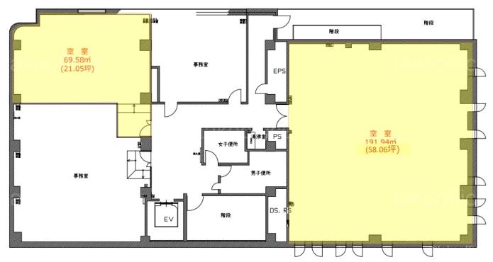
2 21.05坪 事務所 相談 相談 相談
2 58.1坪 事務所 相談 相談 相談
5 79.62坪 事務所 相談 相談 相談
浜松町ビル 外観

外観

  • 浜松町ビル エントランス写真

    エントランス

  • 基準階

    基準階

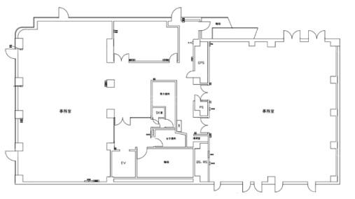
  • 1F

    1F

  • 2F

    2F

  • 5F

    5F

  • B2F

    B2F

内見やお見積りなどの各種お問い合わせ

全物件
仲介手数料無料
仲介から
入居工事まで
ワンストップで対応
経験豊富なスタッフが
スピード感をもって
対応

※「ご相談」と記載されている項目について
賃貸人が募集賃料条件を守秘義務の関係から明示していない場合に、【ご相談】と記載しております。
フリーレント(賃料免除)期間、使用面積、入居時期、テナント様の与信などによりご提示できる条件が若干変化いたします。
お手数ですが、詳細につきましては、上記よりお問い合わせください。

周辺での似た条件の物件

非公開物件 多数あり!

お問い合わせフォーム