takeofficeなら掲載物件の仲介手数料は無料です

芝公園3丁目ビル

住所 東京都港区芝公園3-1-38
交通 都営三田線御成門」 徒歩4分
東京メトロ日比谷線神谷町」 徒歩4分
竣工 1981年06月 構造 RC
規模 地上6階 耐震基準 新耐震基準
床構造 フリーアクセス 70mm 空調設備 個別空調
天井高 2530mm 基準階面積 420.87坪(1391.31m2)
コンセント容量 60VA/m2 施工会社
坪面積 用途 賃料 坪単価 共益費 入居可能日
2 179.69坪 事務所 相談 相談 相談 2026年4月1日
芝公園3丁目ビル 外観

外観

  • NOW PRINTING

    エントランス

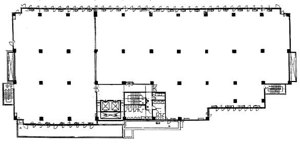
  • 基準階(2〜5F)

    基準階(2〜5F)

建物パンフレット

建物パンフレットは作成時点のものであり、また計画段階のものも含まれる為、実際とは異なる場合がございます。

内見やお見積りなどの各種お問い合わせ

全物件
仲介手数料無料
仲介から
入居工事まで
ワンストップで対応
経験豊富なスタッフが
スピード感をもって
対応

※「ご相談」と記載されている項目について
賃貸人が募集賃料条件を守秘義務の関係から明示していない場合に、【ご相談】と記載しております。
フリーレント(賃料免除)期間、使用面積、入居時期、テナント様の与信などによりご提示できる条件が若干変化いたします。
お手数ですが、詳細につきましては、上記よりお問い合わせください。

周辺での似た条件の物件

非公開物件 多数あり!

お問い合わせフォーム