takeofficeなら掲載物件の仲介手数料は無料です

西桜ビル

住所 東京都港区東麻布2-32-8
交通 都営大江戸線赤羽橋」 徒歩3分
東京メトロ南北線麻布十番」 徒歩4分
東京メトロ日比谷線神谷町」 徒歩12分
竣工 1999年06月 構造 RC
規模 地上7階 耐震基準 新耐震基準
床構造 - 空調設備 個別空調
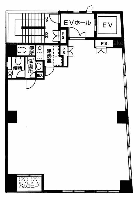
天井高 - 基準階面積 33.28坪(110.02m2)
コンセント容量 - 施工会社

最新の募集状況や類似物件については、
こちらにお問い合わせください。

西桜ビル 外観

外観

  • NOW PRINTING

    エントランス

  • 基準階

    基準階

内見やお見積りなどの各種お問い合わせ

全物件
仲介手数料無料
仲介から
入居工事まで
ワンストップで対応
経験豊富なスタッフが
スピード感をもって
対応

周辺での似た条件の物件

非公開物件 多数あり!

お問い合わせフォーム