takeofficeなら掲載物件の仲介手数料は無料です

菅野ビル

住所 東京都港区麻布台1-7-1
交通 東京メトロ日比谷線神谷町」 徒歩3分
東京メトロ南北線六本木一丁目」 徒歩10分
都営大江戸線赤羽橋」 徒歩10分
竣工 1988年05月 構造 鉄骨造
規模 地上10階, 地下0階 耐震基準 新耐震基準
床構造 - 空調設備 個別空調
天井高 - 基準階面積 21.25坪(70.25m2)
コンセント容量 - 施工会社

最新の募集状況や類似物件については、
こちらにお問い合わせください。

菅野ビル 外観

外観

  • 菅野ビル エントランス写真

    エントランス

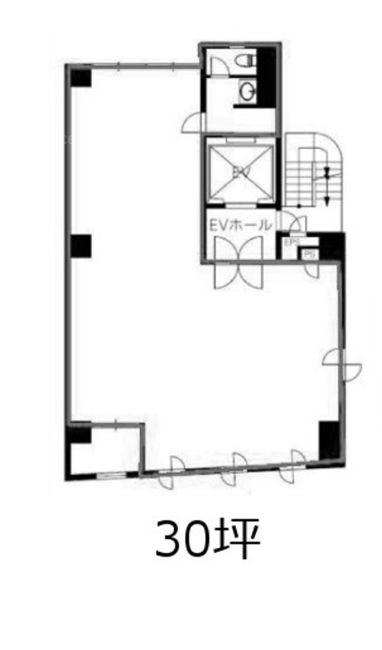
  • 基準階

    基準階

内見やお見積りなどの各種お問い合わせ

全物件
仲介手数料無料
仲介から
入居工事まで
ワンストップで対応
経験豊富なスタッフが
スピード感をもって
対応

周辺での似た条件の物件

非公開物件 多数あり!

お問い合わせフォーム