takeofficeなら掲載物件の仲介手数料は無料です

SD22ビル

住所 東京都港区麻布台1-11-10
交通 東京メトロ日比谷線神谷町」 徒歩2分
竣工 1990年07月 構造 SRC
規模 地上9階, 地下1階 耐震基準 新耐震基準
床構造 フリーアクセス 40mm 空調設備 個別空調
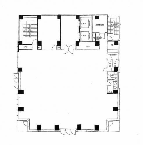
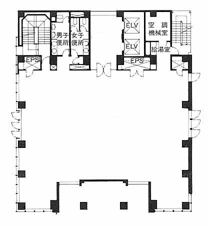
天井高 2550mm 基準階面積 103.45坪(341.98m2)
コンセント容量 80VA/m2 施工会社

最新の募集状況や類似物件については、
こちらにお問い合わせください。

SD22ビル 外観

外観

内見やお見積りなどの各種お問い合わせ

全物件
仲介手数料無料
仲介から
入居工事まで
ワンストップで対応
経験豊富なスタッフが
スピード感をもって
対応

周辺での似た条件の物件

非公開物件 多数あり!

お問い合わせフォーム