takeofficeなら掲載物件の仲介手数料は無料です

BPRプレイス神谷町

住所 東京都港区麻布台1-11-9
交通 東京メトロ日比谷線神谷町」 徒歩4分
都営大江戸線赤羽橋」 徒歩9分
東京メトロ南北線六本木一丁目」 徒歩10分
竣工 1989年11月 構造 SRC+鉄骨造
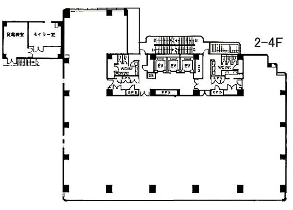
規模 地上11階 耐震基準 新耐震基準
床構造 フリーアクセス 50mm 空調設備 フロア別空調
天井高 2550mm 基準階面積 227.32坪(751.47m2)
コンセント容量 35VA/m2 施工会社 長谷エコーポレーション
坪面積 用途 賃料 坪単価 共益費 入居可能日
2 59.28坪 事務所 募集終了登録日: 2025年05月19日
BPRプレイス神谷町 外観

外観

建物パンフレット

建物パンフレットは作成時点のものであり、また計画段階のものも含まれる為、実際とは異なる場合がございます。

内見やお見積りなどの各種お問い合わせ

全物件
仲介手数料無料
仲介から
入居工事まで
ワンストップで対応
経験豊富なスタッフが
スピード感をもって
対応

※「ご相談」と記載されている項目について
賃貸人が募集賃料条件を守秘義務の関係から明示していない場合に、【ご相談】と記載しております。
フリーレント(賃料免除)期間、使用面積、入居時期、テナント様の与信などによりご提示できる条件が若干変化いたします。
お手数ですが、詳細につきましては、上記よりお問い合わせください。

周辺での似た条件の物件

非公開物件 多数あり!

お問い合わせフォーム