takeofficeなら掲載物件の仲介手数料は無料です

M21ビル

住所 東京都港区六本木2-2-5
交通 東京メトロ南北線六本木一丁目」 徒歩4分
東京メトロ銀座線溜池山王」 徒歩7分
東京メトロ千代田線赤坂」 徒歩7分
竣工 1971年11月 構造 SRC
規模 地上8階 耐震基準 旧耐震基準
床構造 フリーアクセス 100mm 空調設備 個別空調
天井高 2400mm 基準階面積 45坪(148m2)
コンセント容量 - 施工会社

最新の募集状況や類似物件については、
こちらにお問い合わせください。

M21ビル 外観

外観

  • M21ビル エントランス写真

    エントランス

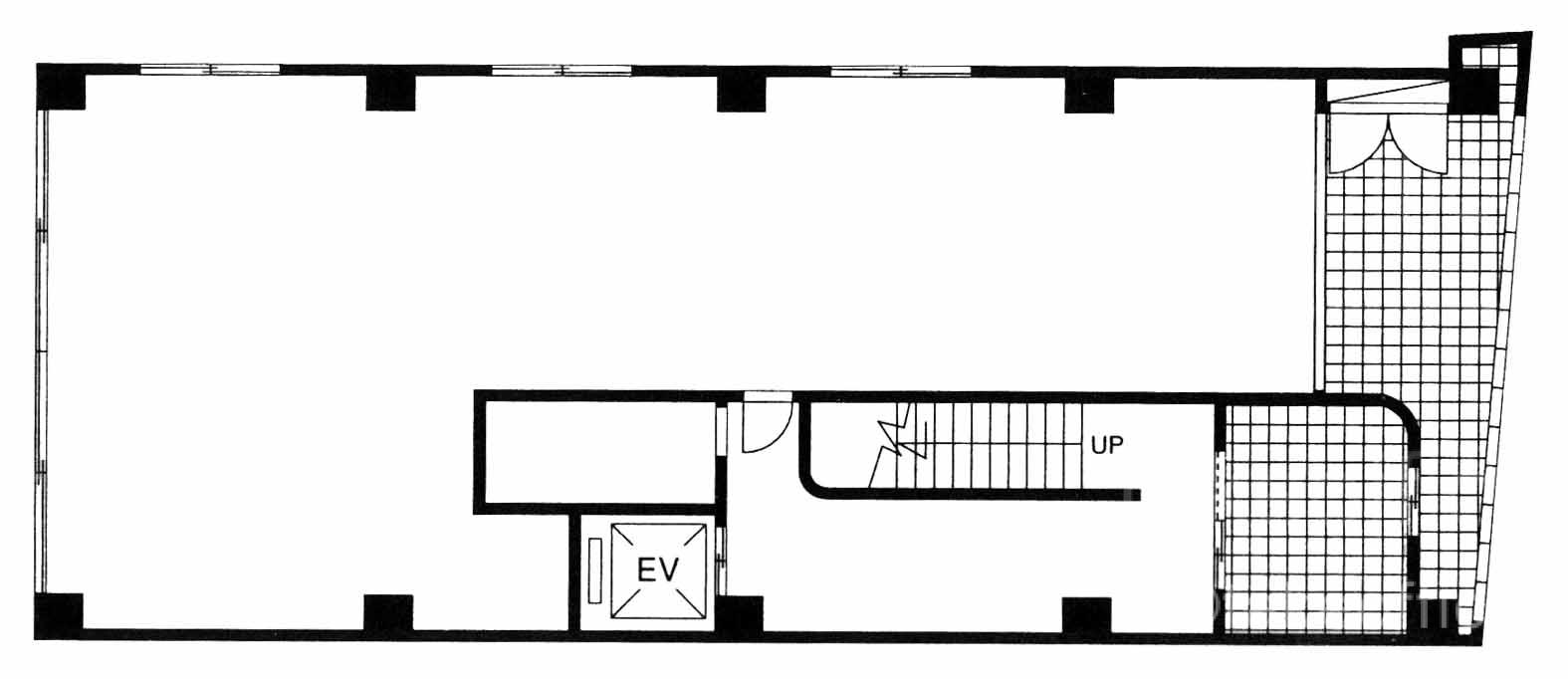
  • 1F

    1F

内見やお見積りなどの各種お問い合わせ

全物件
仲介手数料無料
仲介から
入居工事まで
ワンストップで対応
経験豊富なスタッフが
スピード感をもって
対応

周辺での似た条件の物件

非公開物件 多数あり!

お問い合わせフォーム